Welcome to CCI House Plans

NO BACKGROUND BANNER (2)

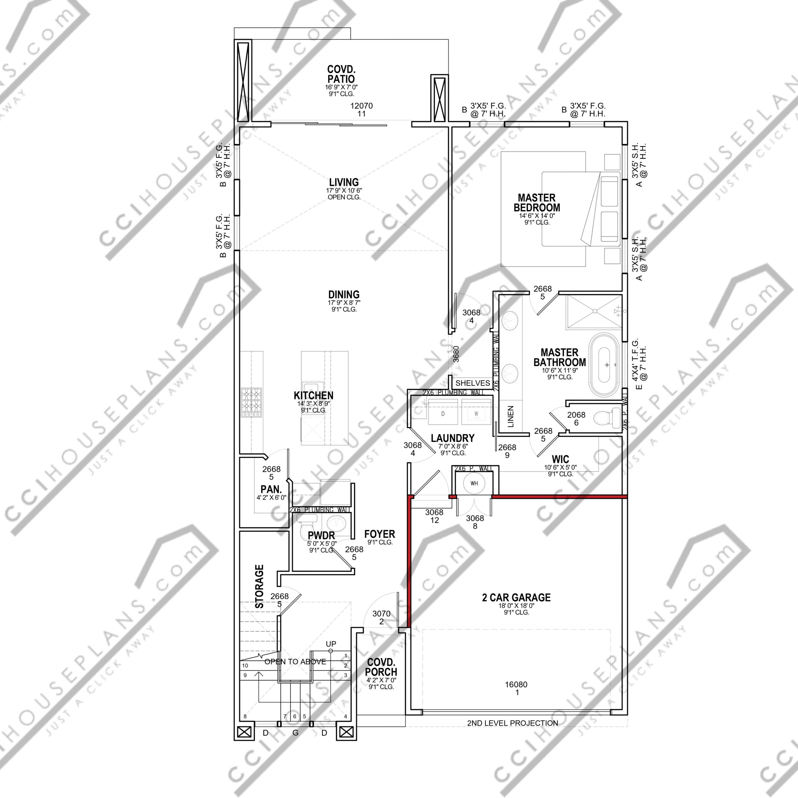
Stock Plans

TGB 082

The TGB-082 is a contemporary home designed to balance open social spaces with private living areas, offering comfort, flow, and modern functionality.

Space Breakdown:

  • Conditioned Living Area: 2,372 Sq. Ft.

  • Total Area Under Roof: 3,085 Sq. Ft. (Includes Garage, Porches, and Patios)

Key Features:

  • Open-Concept Main Living Areas: The main level features a seamless integration of the kitchen, dining, and living areas, creating a bright and inviting environment ideal for everyday living and entertaining.

  • Main-Level Primary Suite: The primary bedroom is located on the main floor and includes a spacious ensuite bathroom with double vanities, a separate shower and tub, and a generous walk-in closet that connects directly to the laundry area for added convenience.

  • Upper-Level Bedrooms & Recreation: The upper level includes three additional bedrooms that share a full bathroom, all with access to a terrace.

  • Game Room Overlook: A game room on the upper level overlooks the living area below, enhancing the sense of openness and connection throughout the home.

Ready to see our work in real life? Follow the map to the site: 1721 Avenue B, Dallas, TX 75203

$3,085.00

You May Also Like

What you receive immediately after you purchase the set

Floor Plans

Scale floor plan indicating location of frame and masonry walls, support members, doors, windows, plumbing, fixtures, cabinets, shelving, ceiling conditions and notes deemed relevant to this plan.

Exterior Elevations

Drawing will indicate overall configuration of home at each side view and make note of plate heights, roof overhangs, window header heights, roof pitches, materials used and extent to which they are used and enlargement of any details we feel necessary to explain the construction.

Electrical Plans

Plans indicating location and types of electrical fixtures, switches, outlets, and how they are to be switched. Plans do not include circuiting or wire sizing. Plans will also include specialty items such as hose bibbs, gas connections, location of a/c equipment, return air vents or other mechanical/electrical/plumbing items which need to be located.

Roof Plan
Wall Sections

What we will send you once you provide us with your survey and lot information via email

Site Plan

This site plan is not included in your downloadable file. A survey must be provided in order to generate a site plan.

Foundation Plan

These are generic foundations creating/using basic information and do not reflect exact soil conditions for this site, it is recommended that you engage a certified engineer to conduct a soil survey to ensure that your project is in compliance.

Mechanical Plan

Location of heating and air equipment and duct work.

Plumbing Plan

Drawings showing the actual plumbing pipe sizes and locations.

Framing Plans

What is not included in our set

Architectural or Engineering Stamps

This is a separate service only provided upon request.

Civil Drawings

You cannot copy content of this page

Name